辻堂駅徒歩圏の平屋一戸建賃貸物件!JR東海道線辻堂駅南口より徒歩18分にある戸建エルズサポート株式会社【家賃】95,000円【交通】神奈川県藤沢市辻堂6丁目 | 藤沢・湘南の不動産は株式会社湘南さくらエステート
辻堂6丁目貸家
南向きの陽当り良好な平屋賃貸物件!
リビング写真です
キッチン写真です
浴室写真です
南側和室写真です
洋室写真です
トイレ写真です
- 住所
- 神奈川県藤沢市辻堂6丁目MAPで確認
- 交通
- JR東海道線辻堂駅南口より徒歩18分
物件概要
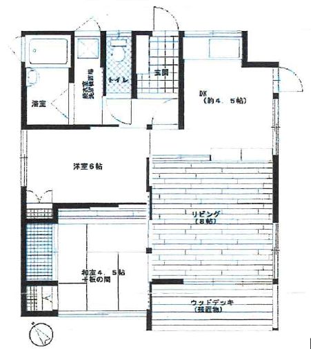
- 間取り
- 2LDK
- 専有面積
- 52.23m2
- 築年月
- 1964年04月
- 主要採光面
- 南
- 所在階 / 階数
- 平屋
- 種別
- 戸建
- 損保
- 2年間で2万円
- 駐車場
- 有 月額7,000円/台
- 近隣駐車場
- バイク置き場
- 無
- 契約期間
- 普通借家2年間
- 借家区分
- 普通借家
- 現況
- 空室
- 入居可能日
- 相談
- 取引態様
- 専任媒介
保証代行会社
エルズサポート株式会社
- 賃料
- 95,000円
- 管理費
- 無
- 共益費
- 無
- 敷金
- 2か月
- 礼金
- 1ヶ月
- 保証金
- 更新料
- 新賃料の1ヶ月分
- 鍵交換代
- 仲介手数料
- 賃料の1ヶ月+消費税
他初期費用
契約期間中24時間駆付けサービス(コンシェルジュ24)毎月1,100円(税込)有設備
B・T別,シャワー,トイレ,全居室収納,室内洗濯機置場,都市ガス,モニタ付インターホン備考
保証会社利用必 エルズサポート株式会社 初回保証料月額総賃料の50%、以後年間継続保証料10,000円/年、引落手数料毎月440円有


















